Наши ремонты
и отделки
Капитальный ремонт трехкомнатной квартиры по готовому дизайн-проекту 89м2 на проспекте Гагарина в Нижнем Новгороде фото
Сергей Лукьяненко
Заказчики ремонта этой трехкомнатной квартиры в новостройке на проспекте Гагарина – дружная семейная пара с двумя детьми. Они предоставили нам готовый дизайн-проект (3D-визуализации и рабочие чертежи), разработанный в известной дизайн-студии. Благодаря опыту и мастерству работников нашей компании Главремонт, удалось достойно воплотить этот сложный с технической точки зрения проект.
В соответствии с проектом были выполнены капитальные демонтажные и монтажные работы: снесены старые перегородки и возведены новые из ПГП (пазо-гребневой плиты). Был проведен полный комплекс черновых и подготовительных работ: выполнена стяжка пола, стены отштукатурены «по маякам» и отшпатлеваны под обои и под покраску, выполнены сложные стеновые конструкции из ГКЛ для устройства встраиваемой подсветки, обустроены оконные и дверные откосы. Также на первом этапе ремонта был проведен большой комплекс сантехнических работ (устройство канализации, водопровода и системы отопления).
Особенностью этого проекта стал большой комплекс электромонтажных работ а также устройство во всей квартире ГКЛ (гипсокартонного) потолка с монтажем разнообразных гипсокартонных конструкций для установки встроенного освещения. Светильники самых разных форм скрыто разместились во всех помещениях, как на потолке, так и на стенах.
Обратите внимание, насколько идеально наши специалисты выполнили отделку ГКЛ потолка. Он был отшпатлеван базовой шпатлевкой, затем армирован стеклохолстом, далее отшпатлеван финишной шпатлевкой (шитроком) и покрашен в 2 слоя. Монтаж и отделка потолка были сделаны с ювелирной точностью: мощное освещение от многочисленных светильников потребовали от потолка и стен зеркальной гладкости, которую и обеспечили профессионалы фирмы Главремонт.
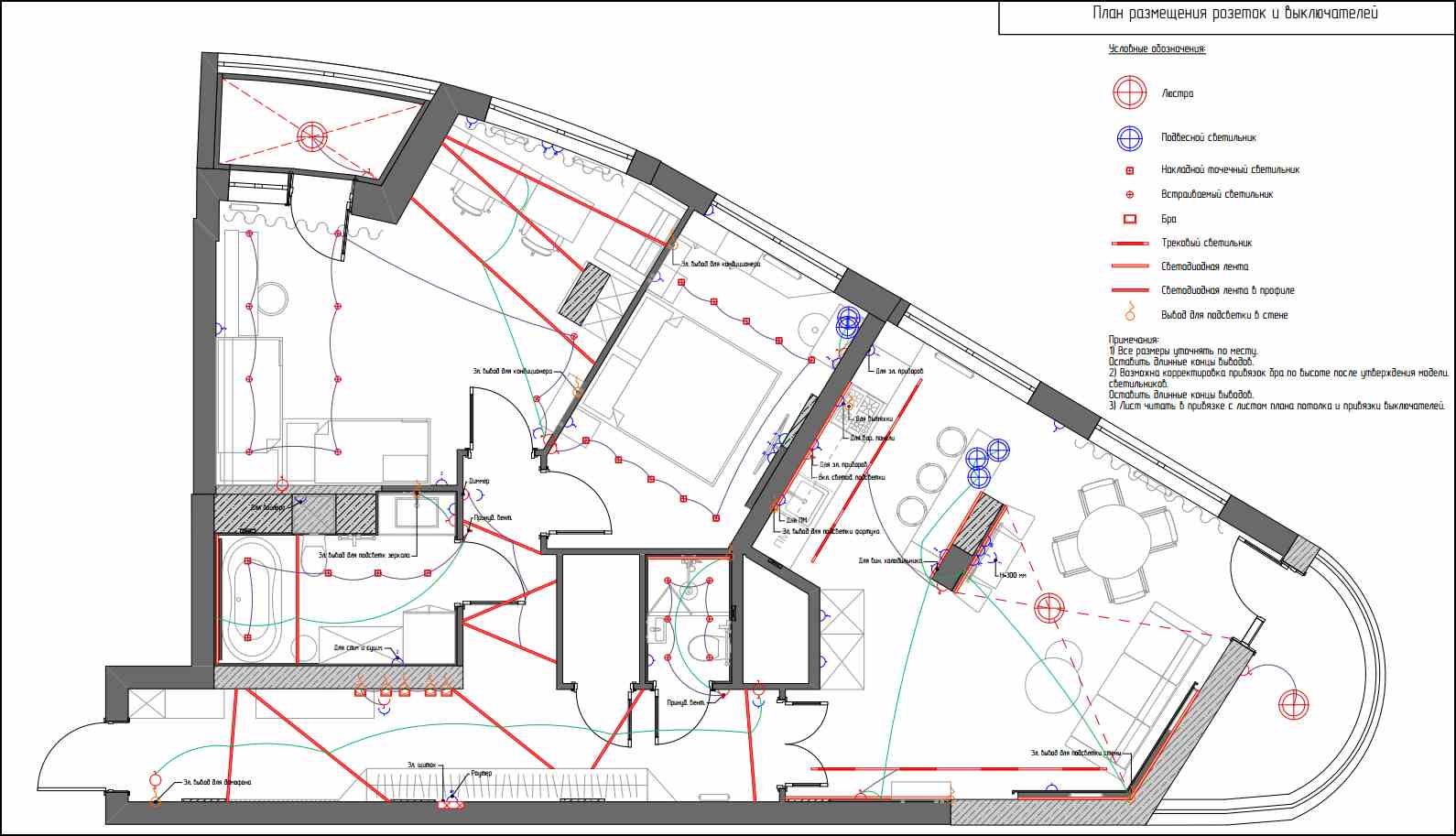
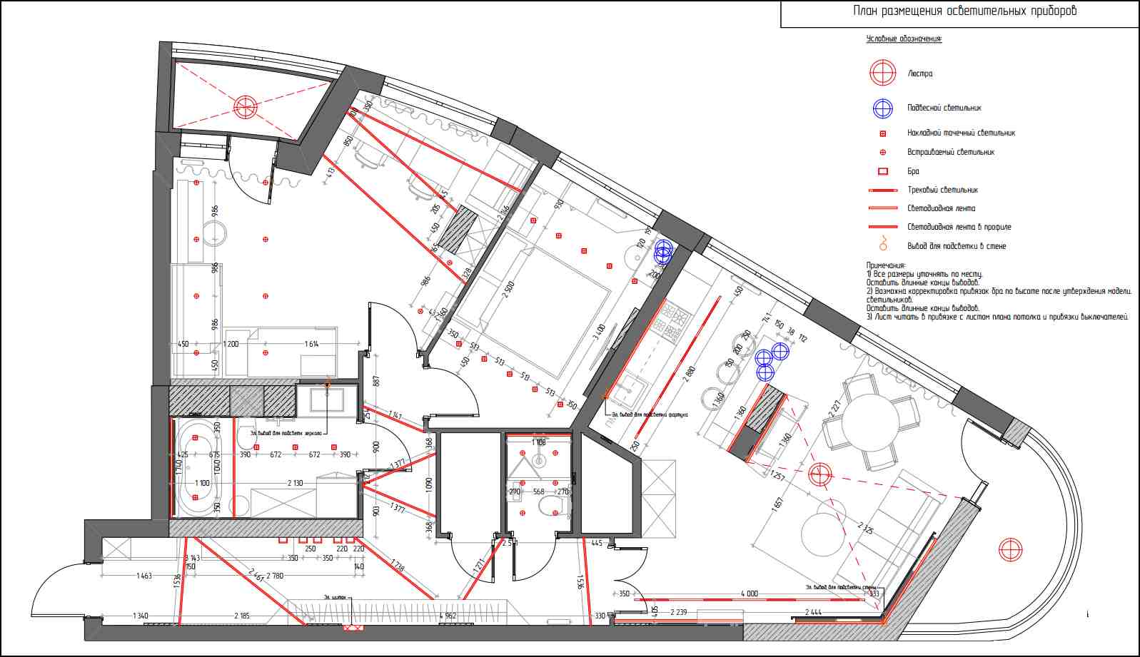
Чтобы понять, какой объем монтажных и электромонтажных работ был проделан специалистами фирмы Главремонт, приведем здесь рабочие чертежи дизайн-проекта: план потолка, план освещения и план установки розеток и выключателей. Например, только для монтажа трековых светильников и подсветки в дизайн-проекте было предусмотрено пять видов монтажных узлов потолочных конструкций из ГКЛ. Все работы были выполнены в соответствии с этими планами, результат порадовал и заказчиков, и нас.
Детям наших заказчиков несомненно понравилась уютная детская, выкрашенная в теплый персиковый цвет и украшенная фреской со сказочным сюжетом. Как и в других помещениях, в детской было смонтировано интересное многофункциональное освещение.
На заключительном этапе ремонта были уложены финишные покрытия на пол в соответствии с планом полов.
Ремонт этой квартиры в новостройке наглядно показывает, что наши специалисты могут достойно воплотить любой дизайн-проект, выполненный сторонним дизайнером или дизайн-студией, причем по вполне приемлемым ценам. Приносите или присылайте нам готовый дизайн-проект, получайте доступную смету и не сомневайтесь в результате!
Остались вопросы?
Закажите звонок.
Наши менеджеры уточнят любые вопросы по ремонту
Как нас найти
- Реквизиты: ИНН: 5262290377
ОГРН: 1135262005768 - Адрес: г. Нижний Новгород, ул. Ижорская,д. 4
- Режим работы: пн-вс: 10-19
- Телефон: +7 (831) 438-44-98
- Почта: info@glavremont52.ru




















