Наши ремонты
и отделки
Капитальный ремонт по дизайн-проекту в сталинке 1939 года постройки 79 кв.м на Верхне-Волжской набережной в Нижнем Новгороде фото
К.И.Чуковский «Телефон», 1926 г.
На примере этого ремонта квартиры в доме 1939 года постройки хочется рассказать всем нашим будущим заказчикам ремонта в сталинке, к чему нужно быть готовым, и показать, насколько это трудоемкий и затратный процесс. Ремонт в таком помещении требует от фирмы-подрядчика высочайшего уровня профессионализма, а от заказчика – времени, терпения и, прямо скажем, немаленького бюджета.
Но если и заказчик, и подрядчик подойдут к делу со всей ответственностью, то результат превзойдет все ожидания! Ведь тут и сама локация в центре города, и культурно-значимая застройка, и внешний вид здания, и высота потолков, и вид из окна – все свидетельствует о статусе владельца. Нужно только привести в соответствие внутреннее содержание. Вот это и потребовало от специалистов фирмы «Главремонт» применения всех их профессиональных навыков, и наша команда в очередной раз справились на отлично!
Сам процесс согласования перепланировки в сталинке ничем особенно не отличается от согласования в других помещениях. Заказчик подал проект, и в разумные сроки получил Распоряжение главы Администрации района, где значилось: «1.Согласовать перепланировку и переустройство…; 2.Осуществлять перепланировку и переустройство в соответствии с представленным проектом…; 3.Заключить договор с организацией…; 4.После окончания работ представить районной приемочной комиссии акт на скрытые работы…5.Установить, что приемочная комиссия осуществляет приемку выполненных ремонтно-строительных работ и подписание акта о завершении перепланировки и переустройство помещения в установленном порядке.».
То есть при официальной перепланировке Администрация требует заключать договор с компанией (юридическим, а не физическим лицом), которая выполнит работы и будет нести за них ответственность.
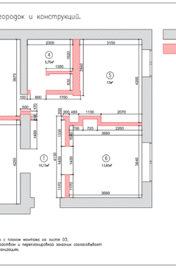
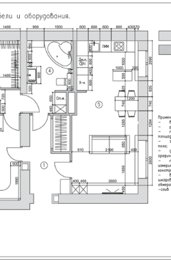
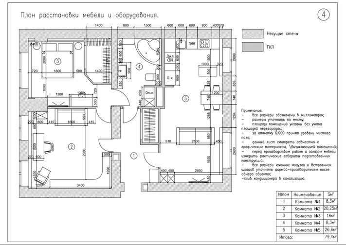
Договор заказчик заключил с нашей фирмой «Главремонт», выдал на руки проект, и уехал заниматься своим бизнесом, а мы приступили к ремонту. Проект, на первый взгляд, казался простым и понятным, вот некоторые чертежи и визуализации:
С виду обычный проект: снести перегородки, возвести перегородки, электрика, сантехника, отделка. Только вот, чтобы дойти до тех работ, с которых обычно начинается смета и, соответственно, ремонт в 90%-ах других помещений, ушел не один месяц!
Как видно на фото 1, нужно было демонтировать перегородки. В обычной квартире, если стены не несущие, их можно демонтировать за один день, и, пожалуйста, возводи новые. Но в сталинке нашим специалистам-сварщикам пришлось практически всю квартиру «сажать» на металлический каркас. Дело в том, что перегородки в сталинке сделаны из досок, обрешетки и штукатурки, и нагрузку от снесенных перегородок без металлокаркаса взяли бы на себя оставшиеся непрочные и очень ветхие конструкции, и вполне могли не выдержать. Помимо этого, перекрытия в сталинке (потолок одной квартиры и одновременно пол в другой) состоят из круглых деревянных балок, которые тоже потеряли прочность от времени. И стены, и оконные проемы нуждались в усилении металлическим уголком, швеллером и т.д. Также сварщики усилили межкомнатные проемы, произвели монтаж упорной стены из угла 75*75 и профильной трубы, усилили проем входной двери. Для этих работ пришлось рассчитать нагрузки, сделать проект, завезти в квартиру огромное количество металла, и смонтировать конструкции с применением сварки.
Время не пощадило и пол в этой квартире. Половые доски прогнили полностью, везде появилась плесень, поэтому пришлось их полностью демонтировать и заново смонтировать деревянный пол во всей квартире. При этом каждый элемент бруса и фанеры нам пришлось обработать составом Neomid от грибка, чтобы он не повредил новый пол в дальнейшем.
Монтаж идеально-ровного пола в сталинке тоже оказался трудоемким процессом в силу технических особенностей помещения. Чтобы сделать «пирог пола» по всем правилам потребовалось: смонтировать металлические углы к полу, смонтировать направляющие, затем установить на них деревянные лаги, уложить минвату и пароизоляцию, сверху настелить фанеру (ЦСП в ванной).
Параллельно с этим производились ремонтно-восстановительные работы: восстанавливалась разрушенная кирпичная кладка, ремонтировался потолок с пропениванием, ремонтировались ниши, прочищались вентканалы и много чего еще. Из квартиры было вывезено огромное количество строительного мусора. Фактически, каркас квартиры был сделан заново. Только после всех этих работ можно было приступать к обычным монтажным, черновым и чистовым отделочным работам.
При таком начальном состоянии помещения все подготовительные работы пришлось выполнить в полном объеме. Чтобы восстановить геометрию потребовалась оштукатурить все капитальные стены и откосы по маякам, причем толщина штукатурки доходила до 7см, затем стены идеально шпатлевались. В ванной комнате необходимо было сделать гидроизоляцию и залить цементно-песчаную стяжку. Далее возвели двухслойные перегородки из ГКЛ со звукоизоляцией и закладными для мебели, смонтировали фальшстены и ГКЛ короба для стояков и инсталляции, устроили ГКЛ потолки и потолочные короба. Конечно же, был выполнен большой объем работ по электрике, включая устройство теплых полов.
Поскольку финишные покрытия стен отличались большим разнообразием фактур (покраска, фрески, обои), пришлось тщательно готовить поверхности: стены армировались стеклохолстом и наносилась финишная шпатлевка (шитрок). Аналогично доводились до идеала гипсокартонные потолки. А еще монтировались и окрашивались багеты и молдинги. Большой объем был выполнен нашим плиточником. Керамогранит был уложен и на стены, и на пол, и в ванной, и в прихожей, и в кухне.
Впрочем, все эти отделочные работы уже доставляли нам сплошное удовольствие, когда мы вспоминали, какой объем работы необходимо было проделать, чтобы привести в порядок старую сталинку. Предлагаем и вам оценить результат наших усилий:
Этот пример ремонта мы приводим всем заказчикам, которые планируют сделать ремонт в сталинке в Нижнем Новгороде. Объясняем, что нужно быть готовыми к следующему:
1) Невозможно составить точную смету на работы и материалы до выполнения демонтажных работ, поскольку только удалив старые покрытия, можно оценить масштаб бедствия и объем подготовительных работ;
2) Не имеет смысла начинать капитальный ремонт в сталинке, не имея достаточного бюджета. Цена ремонта в сталинке за условный квадратный метр окажется намного больше, чем в любой новостройке и большинстве вторичных квартир;
3) Не стоит начинать ремонт в сталинке, не имея запаса времени, в условиях цейтнота. При ремонте в старой квартире уже по ходу дела появляется большое количество дополнительных задач, и нельзя заранее сказать, сколько времени уйдет на их решение;
4) Мы никогда не советуем делать в сталинке косметический ремонт, или какие-то частичные монтажные работы. Нельзя просто так что-то снести или возвести, это может привести к масштабным разрушениям;
5) Самое главное-ремонт в таких квартирах требует участия профессионалов! Никогда не занимайтесь ремонтом в сталинке самостоятельно, обращайтесь к нам! Специалисты компании «Главремонт» знают, как это делать!
Остались вопросы?
Закажите звонок.
Наши менеджеры уточнят любые вопросы по ремонту
Как нас найти
- Реквизиты: ИНН: 5262290377
ОГРН: 1135262005768 - Адрес: г. Нижний Новгород, ул. Ижорская,д. 4
- Режим работы: пн-вс: 10-19
- Телефон: +7 (831) 438-44-98
- Почта: info@glavremont52.ru






















